Objekat 3 - Laze Pačua 22a

Početak gradnje: JUN 2025
Završetak gradnje: DECEMBAR 2026

DOKUMENT STATUS DOKUMENTA PREUZIMANJE (PDF)
Lokacijski uslovi ZAVRŠENO LOKACIJSKI USLOVI
Građevinska dozvola ZAVRŠENO GRAĐEVINSKA DOZVOLA
Potvrda o plaćenim komunalijama ZAVRŠENO POTVRDA
Akt pravosnažnosti ZAVRŠENO REŠENJE O USVAJANJU
Potvrda o prijavi radova ZAVRŠENO PRIJAVA RADOVA
Tehnički pregled / prijem U PROCESU
Upotrebna dozvola U PROCESU
Uknjižba objekta U PROCESU

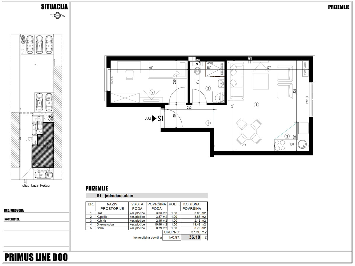
STAN 1 - PRIZEMLJE

JEDNOIPOSOBAN - 36,18 m2

STAN 2 - SPRAT

TROIPOSOBAN - 74,83 m2

STAN 3 - POTKROVLJE

JEDNOIPOSOBAN - 33,58 m2

STAN 4 - POTKROVLJE

JEDNOIPOSOBAN - 43,96 m2

Prodata parking mesta:

PM1, PM2, PM3, PM4, PM5 i PM6

Mi stojimo iza svakog našeg posla i garantujemo potpunu pravnu sigurnost! Informišite se o cenama i uslovima kupovine stanova, lokala i garažnih mesta.