Objekat 1 - Laze Pačua 24a

Početak gradnje: JUN 2025
Završetak gradnje: DECEMBAR 2026

DOKUMENT STATUS DOKUMENTA PREUZIMANJE (PDF)
Lokacijski uslovi ZAVRŠENO LOKACIJSKI USLOVI
Građevinska dozvola ZAVRŠENO GRAĐEVINSKA DOZVOLA
Potvrda o plaćenim komunalijama ZAVRŠENO POTVRDA
Akt pravosnažnosti ZAVRŠENO REŠENJE O USVAJANJU
Potvrda o prijavi radova ZAVRŠENO PRIJAVA RADOVA
Tehnički pregled / prijem U PROCESU
Upotrebna dozvola U PROCESU
Uknjižba objekta U PROCESU

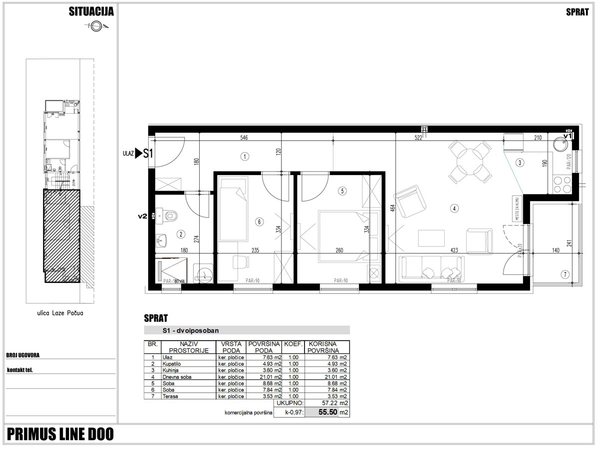
STAN 1 - SPRAT

DVOIPOSOBAN - 55,50 m2

STAN 2 - SPRAT

JEDNOIPOSOBAN - 43,06 m2

STAN 3 - POTKROVLJE

DVOIPOSOBAN - 55,50 m2

STAN 4 - POTKROVLJE

JEDNOIPOSOBAN - 43,06 m2

GARAŽA 1 - PRIZEMLJE

44,82 m2

GARAŽA 2 - PRIZEMLJE

35,07 m2

Prodata parking mesta:

PM1, PM2, PM3 i PM4

Mi stojimo iza svakog našeg posla i garantujemo potpunu pravnu sigurnost! Informišite se o cenama i uslovima kupovine stanova, lokala i garažnih mesta.